Superior homes in all aspects

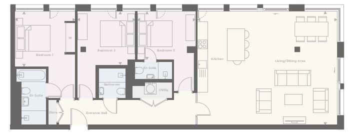
Apartment 7.05

  • 3 Bedrooms
  • 3 Bathrooms
  • Seventh Floor
  • 12 Hour Concierge
  • Price of £850,000

*Plot locators may highlight a number of units and you should refer to the relevant floor level for the exact layout. Please speak to a Sales Advisor if you require further information.

Share this page:

Location

Ryedale House sits proudly in the centre of the historic city of York, North Yorkshire.


York is a truly distinctive city, one which offers history, culture and contemporary living in equal measure.


While the magnificent York Minster and the elegant Georgian architecture can transport you back in time with just a single glance, York is undeniably a city for contemporary living too. Its public squares, gardens, shops, bars, cafés and restaurants make it the ideal destination for a multitude of lifestyles.

Enquire now

01423 326 336

sales@newby.co.uk

Monday - Friday
9am - 5pm

Copyright © 2026 Newby